
SDM-2020 Satellite Demodulator Revision 4
ASI/LVDS Data Interface MN/SDM2020D.IOM
13–5
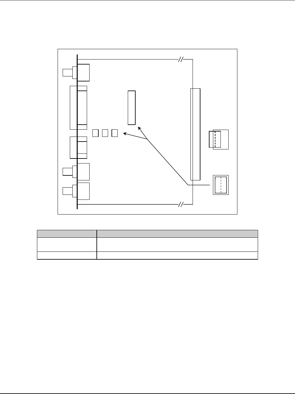
13.1.3.1 Jumper Selection
There are jumpers located on the ASI/LVDS card that require proper selection. See
Figure 13-2. A description of the jumpers and application data is as follows:
•
•
•
• •
• •
• •
• •
• •
• •
• •
• •
• •
• •
• •
• •
• •
• •
• •
• •
• •
• •
• •
JP1
JP2
JP3 JP4
• •
• •
Jumper In
ON
Position
J6
J7
J3
J4
J5
• •
• •
Jumper In
OFF
Position
Jumper Description
JP1 Selects whether the LVDS-DVB connector, J6, operates as
input or an output
JP2, JP3, and JP4 A single jumper is placed on JP2, JP3, or JP4.
Figure 13-2.ASI/LVDS Jumper Selection
Comentários a estes Manuais